Price £995 pcm New Instruction

Price £995 pcm - Available Now - Furnished


  • Very spacious Studio Room with shared communal kitchen, lounge and bathroom.
  • 3 minute walk to Guildford Station and Town central
  • Tastefully furnished with couch and dining table and plenty storage space.
  • All bills included to include Council Tax.
  • Size is 4.5 x 5 with bay window
  • All appliances provided to include communal TV, Broadband etc
  • Suite Professional Couple in room 3 only
  • Prime location
  • 6 month let or longer
  • All maintenance provided

ROOM 1 - LET

ROOM 2 - LET

ROOM 3 - AVAILABLE BY 20TH JUNE 2026 - Single occupant (NOT AN EN-SUITE)


Professional House Share Managed by New Leaf Homes
________________________________________
Looking for a high-quality, professionally managed home?
New Leaf Homes offers well-maintained shared accommodation for working professionals who value comfort, stability, and a respectful living environment. Our homes are fully furnished, include all bills, and are operated under clear licence agreements, giving you a secure, hassle-free, long-term home where you can focus on work, life, and building great friendships with like-minded housemates.
________________________________________
About the Property
This home is part of New Leaf Homes' professionally managed accommodation portfolio in Guildford and Godalming.
We provide high-quality, well-maintained shared homes designed for people who value a comfortable, respectful, and stable living environment.
All of our homes are located between 3 and 25 minutes' walk from the station, making them ideal for commuters.
New Leaf Homes has been providing professionally managed accommodation in the area for over 15 years, and we take pride in creating homes where residents are happy to stay long term.
This property is operated by New Leaf Homes under a long-term agreement with the property owner or local agent, allowing us to provide a professionally managed living environment with clear written licence agreements, regular maintenance, and responsive support.
________________________________________
What's Included
All utility bills included
Council Tax, fast fibre broadband, water, gas, and electricity.
Regular cleaning
Communal areas professionally cleaned fortnightly. Optional room cleaning available on request for an additional charge.
Garden maintenance
Garden maintained approximately every 2 4 weeks when required.
Fully furnished home
Rooms and communal areas fully furnished and equipped with appliances. Some bedrooms include TVs.
Professional preparation before move-in
Rooms and communal areas are professionally cleaned and disinfected prior to each new resident moving in.
________________________________________
Contract Terms
• 3 6 month agreements considered if taken promptly
• 12-month agreements preferred from September onwards, with the option to extend
• Opportunity to move between rooms within this property or other homes in our portfolio when available, with no additional referencing required
• Early release may be possible if a suitable replacement resident is found
________________________________________
Referencing Requirements
To pass referencing:
• Income should be 2.5 × the annual rent
• In some cases, a guarantor may be required (income multiple 3 × annual rent)
________________________________________
Deposit & Fees
• Deposit protected with the DPS
• Typically 1 month licence fee, or a reduced deposit may be available where a professional checkout cleaning fee is agreed in advance
• Zero deposit scheme available
Residents receive:
• Individual Licence Agreement
• Terms of Business
• House Guidelines
• Deposit protection confirmation
________________________________________
Documents Required
• Photo ID (passport or driving licence)
• Proof of Right to Rent in the UK
• Employment contract or proof of income
• Previous landlord reference where available
________________________________________
Viewings
To arrange a virtual or in-person viewing, please register on the New Leaf Homes website using the orange tab on the homepage, or call/text Vivien.
Office Hours
Weekdays: 10am 6pm
Saturday: 10am 12pm
Closed Sundays
________________________________________
Our aim is to provide stable, well-managed accommodation where professionals feel comfortable staying long term and enjoy sharing a home with like-minded people.


Council tax band D



Deposit: £500.00

Minimum Tenancy : 12 months

Notice
All photographs are provided for guidance only.

The following are permitted payments which we may request from you:

a) The rent
b) A refundable tenancy deposit (reserved for any damages or defaults on the part of the tenant) capped at no more than five weeks' rent where the annual rent is less than £50,000, or six weeks' rent where the total annual rent is £50,000 or above
c) A refundable holding deposit (to reserve a property) capped at no more than one week's rent
d) Payments to change the tenancy when requested by the tenant, capped at £50, or reasonable costs incurred if higher
e) Payments associated with early termination of the tenancy, when requested by the tenant
f) Payments in respect of utilities, communication services, TV licence and council tax; and
g) A default fee for late payment of rent and replacement of a lost key/security device, where required under a tenancy agreement

Please call us if you wish to discuss this further.
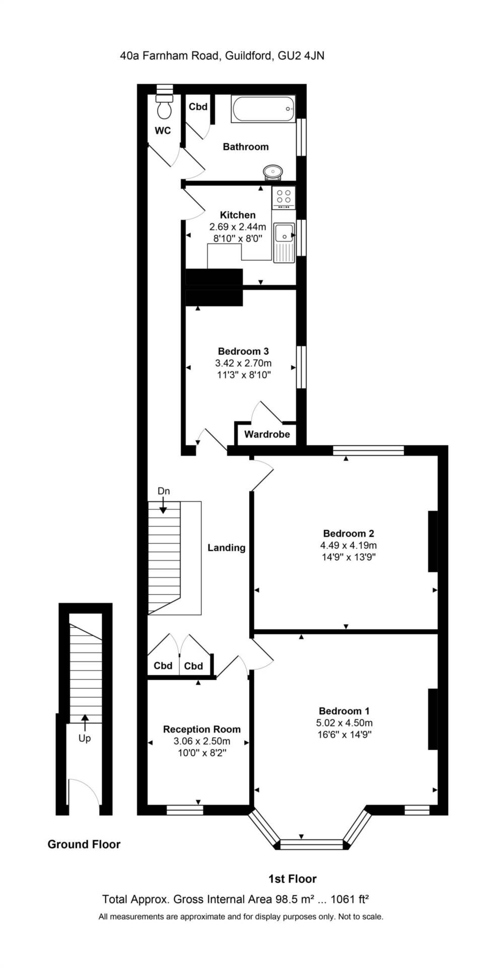
Floor Plan
EER Chart

The Energy-Efficiency Rating is a measure of a home's overall efficiency. The higher the rating, the more energy-efficient the home is, and the lower the fuel bills are likely to be.

Utility Supply Type
Electric Mains Supply
Gas Mains Supply
Water Mains Supply
Sewerage Mains Supply
Broadband None
Telephone None

Other Items Description
Heating Gas Central Heating
Garden/Outside Space No
Parking Yes
Garage No

Broadband Coverage Highest Available Download Speed Highest Available Upload Speed
Standard 15 Mbps 1 Mbps
Superfast 80 Mbps 20 Mbps
Ultrafast 1000 Mbps 100 Mbps

Mobile Coverage Indoor Voice Indoor Data Outdoor Voice Outdoor Data
EE Enhanced Enhanced Enhanced Enhanced
Three Enhanced Enhanced Enhanced Enhanced
O2 Enhanced Likely Enhanced Enhanced
Vodafone Enhanced Enhanced Enhanced Enhanced

Broadband and Mobile coverage information supplied by Ofcom.


marker icon